Barcellona P.G. (ME)
Il progetto nasce dalla volontà di trasformare un ex capannone industriale in un moderno centro fitness, capace di accogliere attività sportive diversificate in un ambiente dinamico, accessibile e visivamente coinvolgente. Il committente ha lasciato carta bianca nella definizione del concept iniziale, che è stato subito apprezzato e sviluppato fino alla sua realizzazione senza modifiche sostanziali.

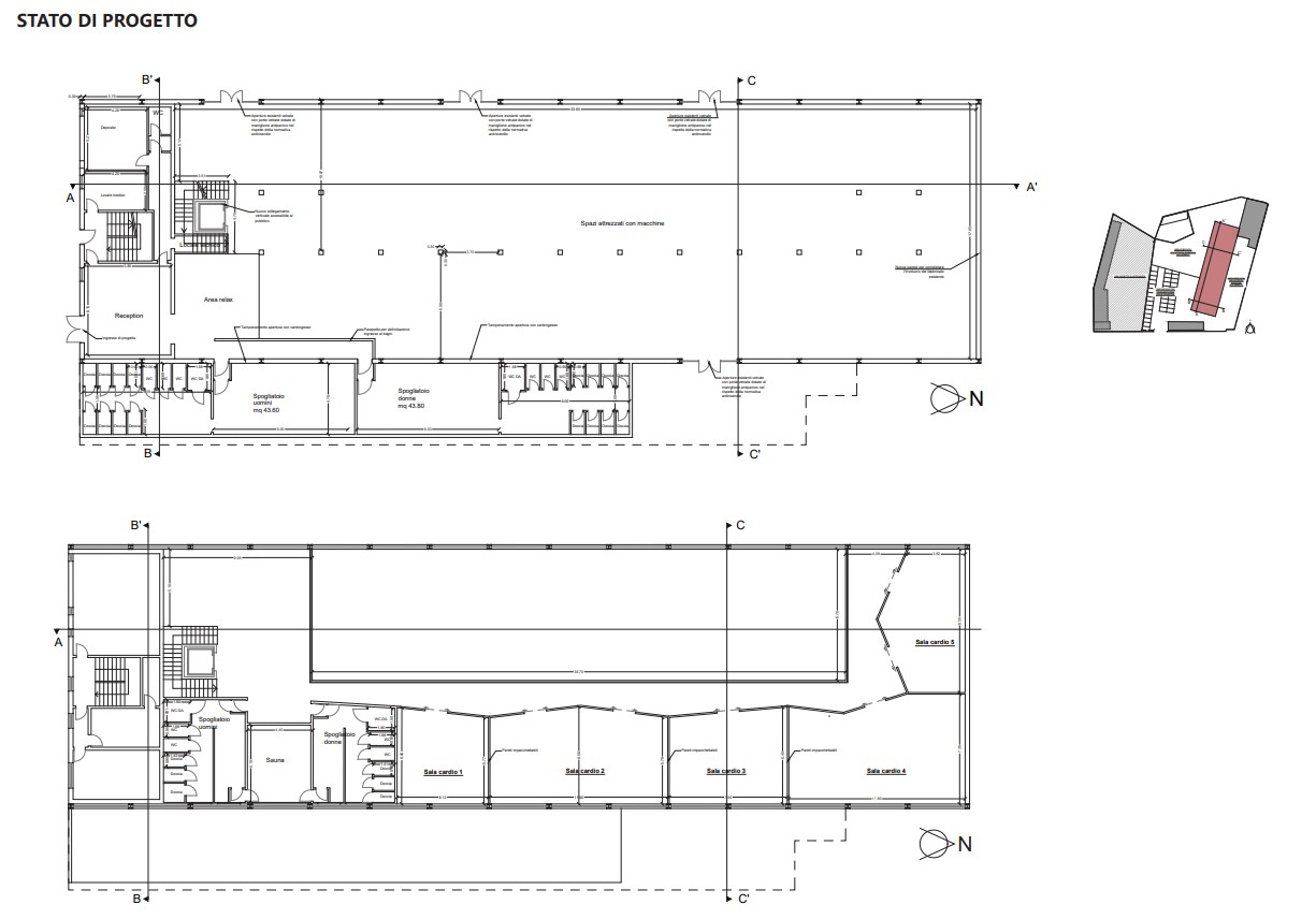
Sfruttando l’importante altezza interna (oltre 7 metri), si è optato per una suddivisione su due livelli.
Al piano terra si estende una grande area open-space attrezzata con macchinari cardio e di forza, dedicata all’allenamento libero.
Al livello superiore, invece, si trovano cinque sale polifunzionali pensate per ospitare corsi come yoga, pilates e altre attività a corpo libero. Le sale sono separate da pareti impacchettabili, così da garantire massima flessibilità d’uso: gli spazi possono essere facilmente riconfigurati, uniti o divisi a seconda delle esigenze.
Spogliatoi sono presenti su entrambi i piani, mentre al piano superiore è stata inserita anche una sauna, completando l’offerta benessere del centro.
La scala esistente è stata mantenuta e riservata al personale e agli uffici amministrativi, mentre per gli utenti è stata progettata una nuova scala con ascensore, assicurando piena accessibilità verticale.
La definizione estetico-funzionale degli interni rispetta e valorizza la struttura originale:
- al piano terra, una pavimentazione in gomma antiurto garantisce resistenza e sicurezza per l’utilizzo delle attrezzature;
- al piano superiore, si è scelto un gres porcellanato effetto parquet o parquet vero, più adatto alle attività a basso impatto e dal carattere più raccolto.
Le nuove strutture interne sono pensate per integrarsi con la maglia strutturale esistente, definendo gli spazi senza appesantire la percezione volumetrica. Gli elementi costruttivi e impiantistici a vista sono uniformati attraverso l’uso del colore nero, che caratterizza anche gli infissi, conferendo coerenza e un’estetica industriale elegante.
Un elemento distintivo del progetto è la luminosità naturale diffusa, ottenuta grazie alla grande vetrata continua preesistente al secondo livello. Questo elemento, sapientemente valorizzato, si alterna ai pilastri portanti e consente una profonda permeabilità visiva e luminosa. Ulteriori aperture strategiche e tagli sulla struttura riflettono e moltiplicano la luce, contribuendo a creare un ambiente vitale, arioso e stimolante.





Lascia un commento