Barcellona P. G. (ME)
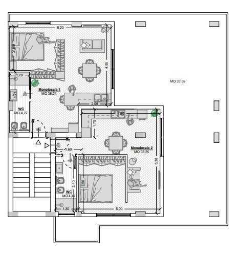
Questo progetto nasce dall’idea di trasformare una mansarda inutilizzata in due monolocali di quasi 40 mq ciascuno. Ho cercato di valorizzare al massimo lo spazio, creando ambienti ben distribuiti e funzionali, senza rinunciare a comfort ed estetica.

Ogni appartamento ha una chiara separazione tra la zona giorno e quella notte, con bagni comodi e razionali, pensati per garantire praticità e benessere quotidiano. Le zone relax e pranzo sono distinte ma in dialogo tra loro, così da rendere gli spazi accoglienti e vivibili in ogni momento della giornata.
La grande luminosità, data dalle ampie finestre, è l’elemento che più caratterizza il progetto: la luce entra generosa e cambia il modo di percepire gli ambienti, rendendoli ariosi, piacevoli e sempre diversi.
Lascia un commento